Nos avis clients
Nos avis clients
0

BUREAUX 120 M2 - ENVIRONNEMENT DE QUALITÉ

Courrières (62710)
Réf : SG_AL_VM LOC 120

Référence : SG_AL_VM loc 100

IMMEUBLE DE QUALITÉ (2012) BIEN ENTRETENU et SECURISÉ - ENVIRONNEMENT AGREABLE - FACILITÉ DE STATIONNEMENT

BUREAUX LUMINEUX AMENAGÉS DE 120 M2 + 2 PLACES DE PARKING + BALCON : JOLIE VUE SUR CHAMPS

PROCHE AXE ROUTIER - PARC TERTIAIRE EN ZONE FRANCHE - 1er étage

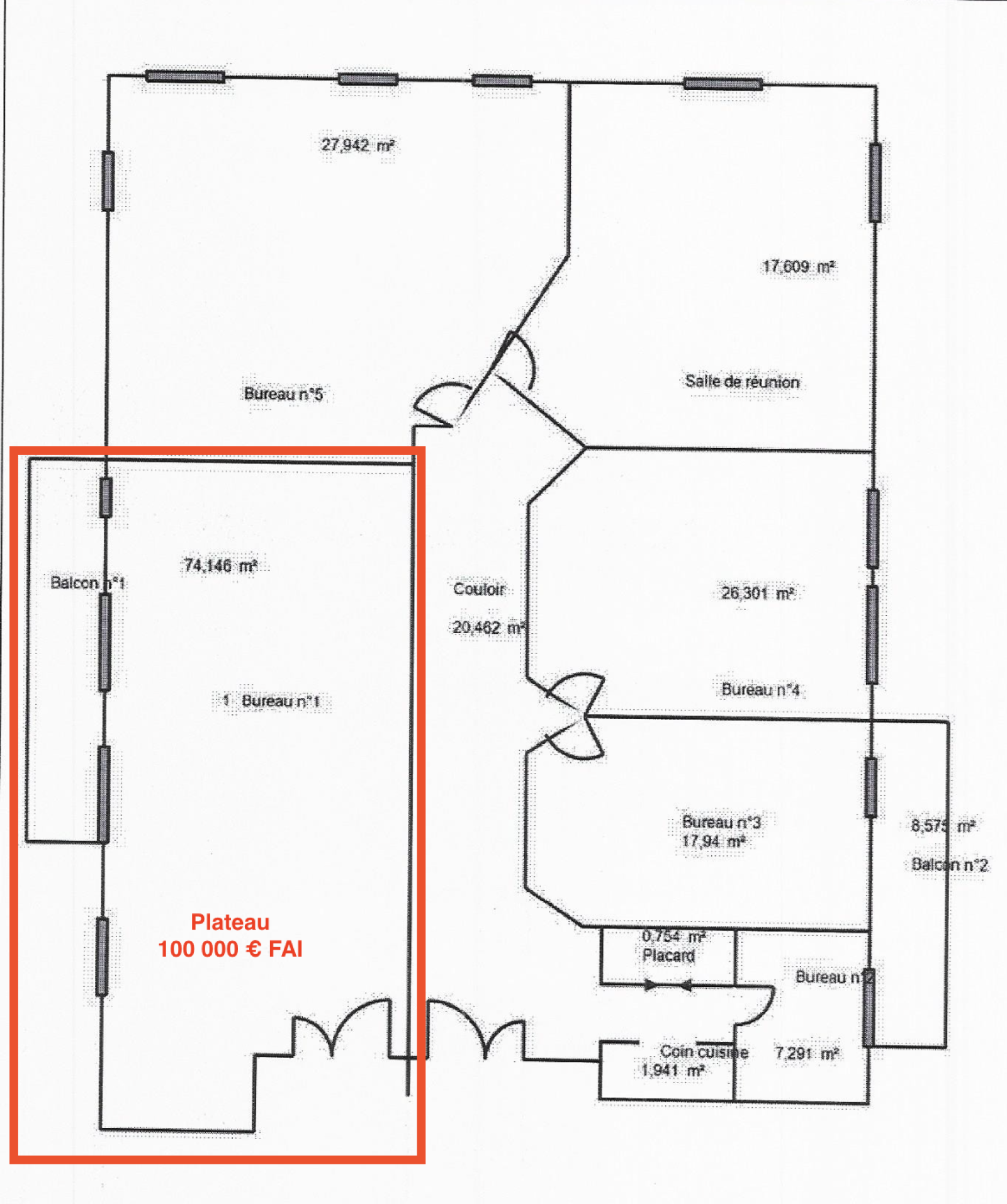
Nous vous proposons à la location un plateau de bureaux de 120 m², situé dans un parc tertiaire en zone franche à Courrières, offrant un environnement professionnel dynamique, lumineux et immédiatement prêt à l’emploi. La localisation permet un accès rapide aux principaux axes routiers, un vrai avantage au quotidien.

Situé au premier étage d’un immeuble sécurisé construit en 2012, le plateau est entièrement cloisonné et aménagé, permettant une installation simple et rapide, sans travaux lourds.
L’entrée dessert une kitchenette avec un espace détente, idéal pour les pauses ou les déjeuners. Trois bureaux spacieux, de 18 à 26 m², offrent de belles possibilités d’organisation interne et peuvent accueillir plusieurs postes chacun. Une salle de réunion de 17 m² permet de recevoir vos clients et collaborateurs dans de bonnes conditions.
Un balcon privatif complète l’ensemble, apportant un confort supplémentaire à la vie professionnelle.

Deux places de parking privatives sont incluses dans la location.

Les prestations sont soignées : grandes menuiseries aluminium, verrière, interphone et digicode, chauffage électrique, éclairage LED, dalle béton, tout-à-l’égout. Les parties communes sont en très bon état général.

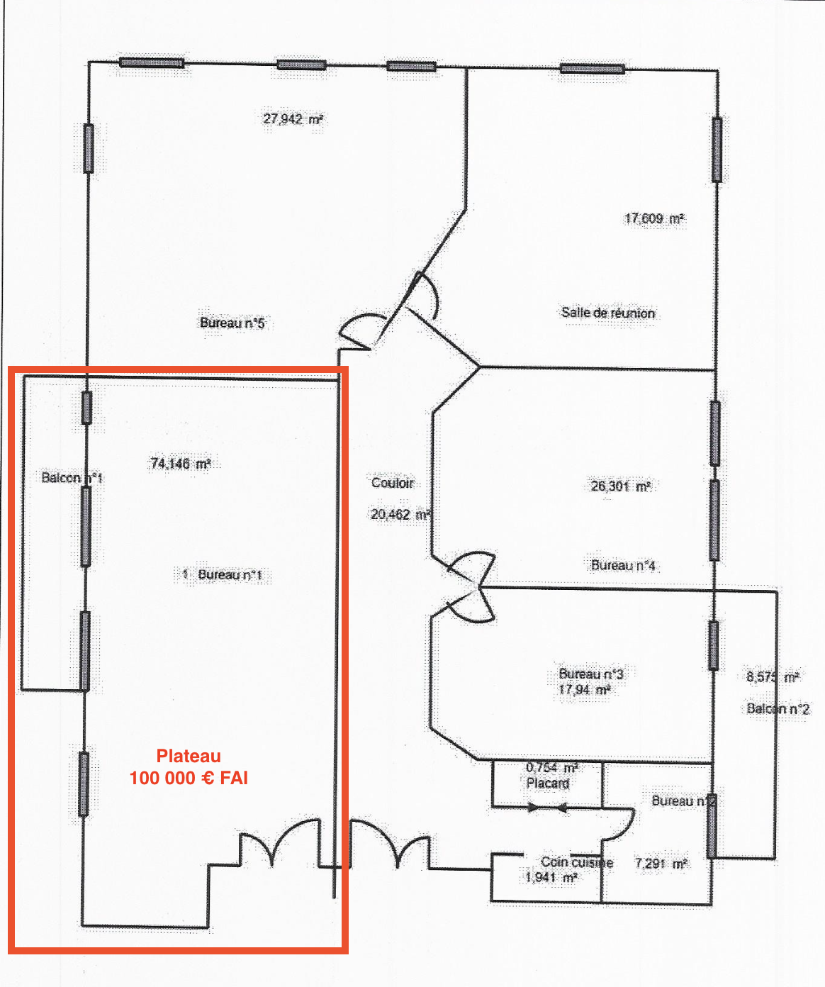
---> POSSIBLITÉ DE LOUER UN SECOND PLATEAU DE 74 M2

Il est possible de louer également un plateau attenant de 74 m², disposant, lui aussi, de deux places de parking privatives.
Les deux plateaux réunis permettent de bénéficier d’un ensemble de 194 m² avec quatre places de stationnement, idéal pour une entreprise en développement, un service structuré en pôles ou une organisation multi-activités.

---> OPTION D'ACHAT - PLATEAUX À L'UNITÉ OU ENSEMBLE

En complément de la location, il est également possible :
d’acheter le plateau de 120 m²,
d’acheter le plateau de 74 m²,
ou d’acquérir l’ensemble, offrant ainsi 194 m² de bureaux avec quatre places de parking.

Cette modularité ouvre la voie à de nombreuses possibilités :
développement d’activité, filialisation, regroupement interne, coworking privé, création de zones de confidentialité, séparation d’équipes, implantation multi-services… Ce type d’ensemble se prête à une grande variété de montages d’entreprise.

La copropriété comprend 111 lots, dont 87 places de stationnement, et aucune procédure en cours.
Les charges annuelles (incluant copropriété + taxe foncière pour les deux plateaux) sont disponibles sur demande.

Contactez-nous pour une visite ou plus de renseignements :

Audrey LAINÉ au 06 50 16 84 50 ou par mail laine-audrey@abithea.fr

Vanessa MENUT : 06 64 85 57 57 ou par mail menut-vanessa@abithea.fr

Agents commerciaux : n° 899 953 475, n° 918 977 794

Abithéa, agence immobilière passionnée

Informations sur les risques auxquels ce bien est exposé sont disponibles sur le site Géorisques:WWW.georisques.gouv.fr

Prix du loyer 1 000 € / mois TTC - HC*
NB Niveau 1

Caractéristiques du bien

Caractéristiques Valeurs
Type de transac Bureaux
Code postal 62710
Surface habitable (m²) 120 m²
Nombre de niveaux 1
Vue Campagne
Superficie (m²) 120
Mode de chauffage Electrique
Type de chauffage Radiateur
Format de chauffage Individuel
Année de construction 2008

Infos financières

Caractéristiques Valeurs
Loyer TTC 1 000 € / mois
Honoraires TTC charge locataire 1 440 €
Dont état des lieux Non renseigné
Dépot de garantie 1 000 €

Bilans énergétiques

DPE GES
Ce bien vous intéresse ?
Fieldset par défaut
Fieldset par défaut
Validation

* Champs obligatoires

Contacter l'agence
Validation
Les informations recueillies sur ce formulaire sont enregistrées dans un fichier informatisé par La Boite Immo agissant comme Sous-traitant du traitement pour la gestion de la clientèle/prospects de l'Agence / du Réseau qui reste Responsable du Traitement de vos Données personnelles. La base légale du traitement repose sur l'intérêt légitime de l'Agence / du Réseau. Elles sont conservées jusqu'à demande de suppression et sont destinées à l'Agence / au Réseau. Conformément à la loi « informatique et libertés », vous disposez des droits d’accès, de rectification, d’effacement, d’opposition, de limitation et de portabilité de vos données. Vous pouvez retirer votre consentement à tout moment en contactant directement l’Agence / Le Réseau. Consultez le site https://cnil.fr/fr pour plus d’informations sur vos droits. Si vous estimez, après avoir contacté l'Agence / le Réseau, que vos droits « Informatique et Libertés » ne sont pas respectés, vous pouvez adresser une réclamation à la CNIL. Nous vous informons de l’existence de la liste d'opposition au démarchage téléphonique « Bloctel », sur laquelle vous pouvez vous inscrire ici : https://www.bloctel.gouv.fr Dans le cadre de la protection des Données personnelles, nous vous invitons à ne pas inscrire de Données sensibles dans le champ de saisie libre.
Ce site est protégé par reCAPTCHA, les Politiques de Confidentialité et les Conditions d'Utilisation de Google s'appliquent.

* HC : Hors charges

Ces biens peuvent vous intéresser