Nos avis clients
Nos avis clients
0

BUREAUX - ENVIRONNEMENT DE QUALITÉ

Courrières (62710)
Réf : SG_85 - VM

IMMEUBLE DE QUALITÉ (2012) BIEN ENTRETENU et SECURISÉ - ENVIRONNEMENT AGREABLE - FACILITÉ DE STATIONNEMENT

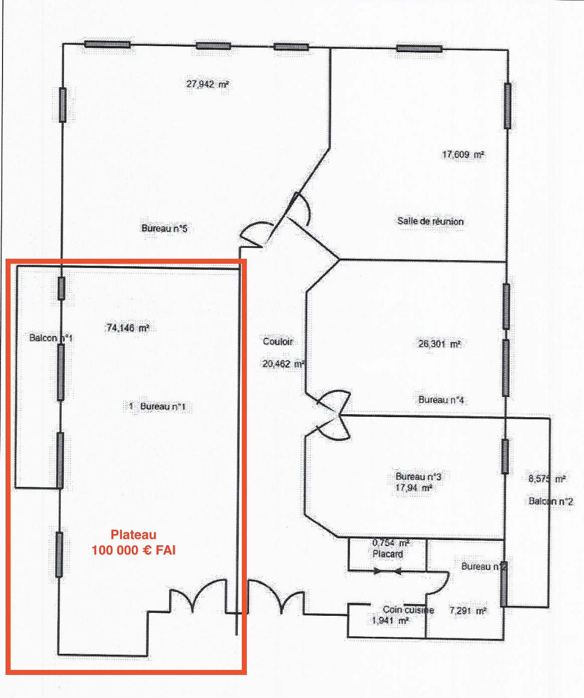
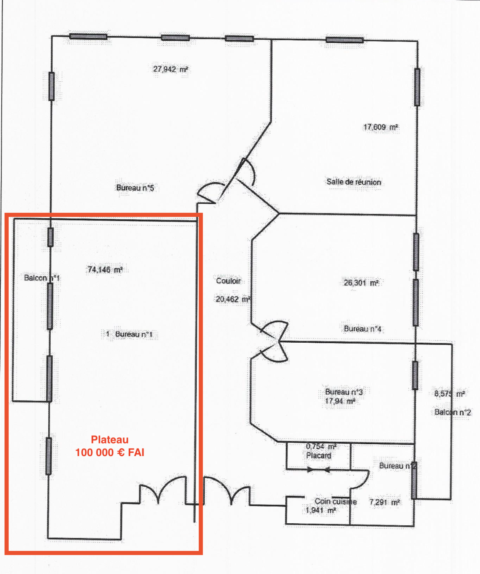
BUREAUX LUMINEUX AMENAGÉS DE 120 M2 + 2 PLACES DE PARKING + BALCON : JOLIE VUE SUR CHAMPS

PROCHE AXE ROUTIER - PARC TERTIAIRE EN ZONE FRANCHE - 1er étage

-------> IMPORTANT : possibilité d'acheter en complément un plateau de 74 m2 attenant à celui-ci (+ ses 2 places de parking également), pour 100 000 € FAI, soit un total de 194 m2 pour 4 places de stationnement.

Sur la commune de Courrières, dans un parc tertiaire en zone franche, nous vous proposons ces bureaux d'une surface totale de 120 m2, lumineux et très agréables pour un quotidien professionnel. L'accès aux principaux axes routiers est rapide.

Au 1er étage d'un immeuble sécurisé de 3 niveaux, bâti en 2012, l'ensemble est aménagé et cloisonné, ce qui vous permettra une installation facile et rapide, l'ensemble pensé pour un environnement pratique, spacieux, agréable.

Une entrée dessert une kitchenette + espace détente, idéal pour déjeuner le midi, 3 bureaux de belle superficie compris entre 18 m2 et 26 m2, une belle de salle de réunion de 17 m2 et un balcon privatif. Pour faciliter votre stationnement, 2 places de parking sont incluses dans la vente.

Les prestations sont de qualité : fenêtres aluminium de belle taille, verrière, interphone + digicode, chauffage électrique, éclairage LED, dalle déton, tout à l'égout. Les parties communes sont accueillantes et en très bon état général.

A propos de la copropriété, celle-ci n'a pas de procédure en cours, elle comprend 111 lots dont 87 places de stationnement.

Contactez-nous pour une visite ou plus de renseignements :

Audrey LAINÉ au 06 50 16 84 50 ou par mail laine-audrey@abithea.fr

Vanessa MENUT : 06 64 85 57 57 ou par mail menut-vanessa@abithea.fr

Agents commerciaux : n° 899 953 475, n° 918 977 794

Abithéa, agence immobilière passionnée

Informations sur les risques auxquels ce bien est exposé sont disponibles sur le site Géorisques:WWW.georisques.gouv.fr

Prix du bien 180 000 €
NB Niveau 1

Caractéristiques du bien

Caractéristiques Valeurs
Type de transac Bureaux
Code postal 62710
Surface habitable (m²) 120,24 m²
Nombre de niveaux 1
Vue campagne
Superficie (m²) 120.24
Mode de chauffage Electrique
Type de chauffage Radiateur
Format de chauffage Individuel
Interphone OUI

Infos financières

Caractéristiques Valeurs
Prix de vente honoraires inclus 180 000 €
Honoraires à la charge acquéreur 6 %

Bilans énergétiques

DPE GES
Ce bien vous intéresse ?
Fieldset par défaut
Fieldset par défaut
Validation

* Champs obligatoires

Contacter l'agence
Validation
Les informations recueillies sur ce formulaire sont enregistrées dans un fichier informatisé par La Boite Immo agissant comme Sous-traitant du traitement pour la gestion de la clientèle/prospects de l'Agence / du Réseau qui reste Responsable du Traitement de vos Données personnelles. La base légale du traitement repose sur l'intérêt légitime de l'Agence / du Réseau. Elles sont conservées jusqu'à demande de suppression et sont destinées à l'Agence / au Réseau. Conformément à la loi « informatique et libertés », vous disposez des droits d’accès, de rectification, d’effacement, d’opposition, de limitation et de portabilité de vos données. Vous pouvez retirer votre consentement à tout moment en contactant directement l’Agence / Le Réseau. Consultez le site https://cnil.fr/fr pour plus d’informations sur vos droits. Si vous estimez, après avoir contacté l'Agence / le Réseau, que vos droits « Informatique et Libertés » ne sont pas respectés, vous pouvez adresser une réclamation à la CNIL. Nous vous informons de l’existence de la liste d'opposition au démarchage téléphonique « Bloctel », sur laquelle vous pouvez vous inscrire ici : https://www.bloctel.gouv.fr Dans le cadre de la protection des Données personnelles, nous vous invitons à ne pas inscrire de Données sensibles dans le champ de saisie libre.
Ce site est protégé par reCAPTCHA, les Politiques de Confidentialité et les Conditions d'Utilisation de Google s'appliquent.
Ces biens peuvent vous intéresser