Nos avis clients
Nos avis clients
0

Appartements de type T2 RDC, 1er étage, 2e étage, 3e étages et dernier étage en VEFA.

Saint-Paul (97460)
Réf : 7435

Plusieurs appartements avec vue sur mer de type T2 sont disponibles à la vente dans la Résidence Cap Alizée à Saint-Paul, cette résidence possèdera 56 logements en copropiétés.

Sur quatres étages. Desservi d'un ascenseur passant par tout les étages,

Elle possèdera un parking collectif en sous-sol, chaque appartement possèdera un numéro de place attribué, elle sera également fermée par un portail. 

La résidence sera également équipée de panneaux solaires.

Vous serez proche de la gare routière, école, supermarché, centre-ville, 200M² du marché de Saint-Paul et piscine du front de mer.

 

10 appartements disponibles de type T2 de 204 000€ à 257 000€.

Au rez de chaussé 1 appartement au prix de 256 000€ 

- Lot n°A06 : T2 situé au rez de chaussé d'une surface habitable de 43.69m2 disposant d'une cuisine ouverte sur le séjour d'une surface de 17.71m2, d'une salle d'eau + WC de 5.60m2 et d'une chambre de 12.87m2 donnant sur un proshe de 6.61m2. La cuisine donne également accès à une varangue + terrasse de 13.74m2, qui donne eux même accès à un jardin privatif de 27.05m2.

La chambre de l'appartement sera équipée d'un brasseur d'air et une attente pour le séjour. Au prix de 256 000€ TTC, les honoraires sont à charge du vendeur.

Au premier étage 4 appartements au prix de 204 000€ :

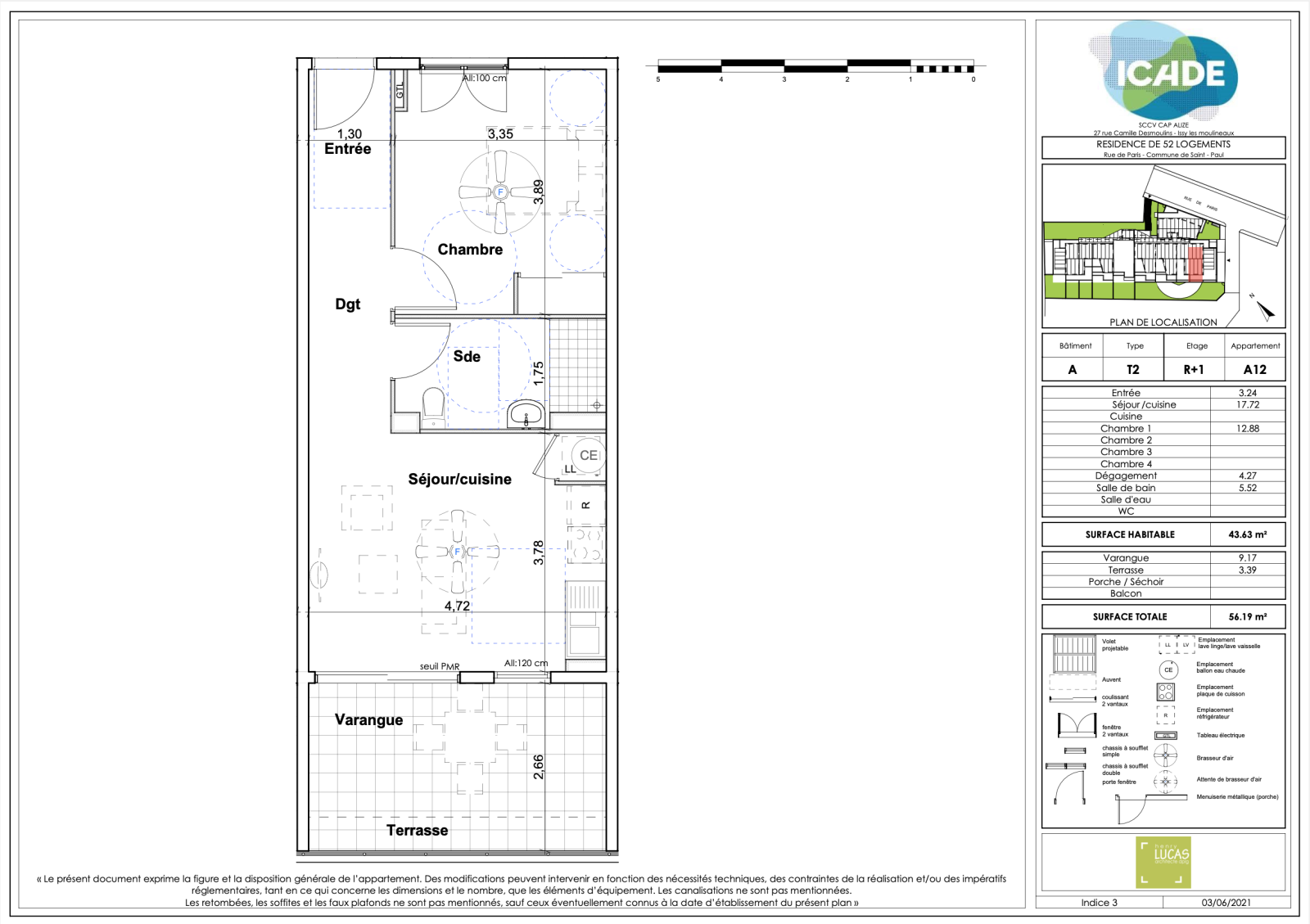
- Lot n°A12 : T2 situé à R+1 d'une surface habitable de 43.63m2, disposant d'une cuisine ouverte sur le séjour de 17.72m2, d'une salle de bain + WC de 5.52m2 et d'une chambre de 12.88m2. La cuisine offre également accès à une varangue + terrasse de 12.56m2.

La chambre de l'appartement sera équipée d'un brasseur d'air et une attente pour le séjour. Au prix de 204 000€ TTC, les honoraires sont à charge du vendeur.

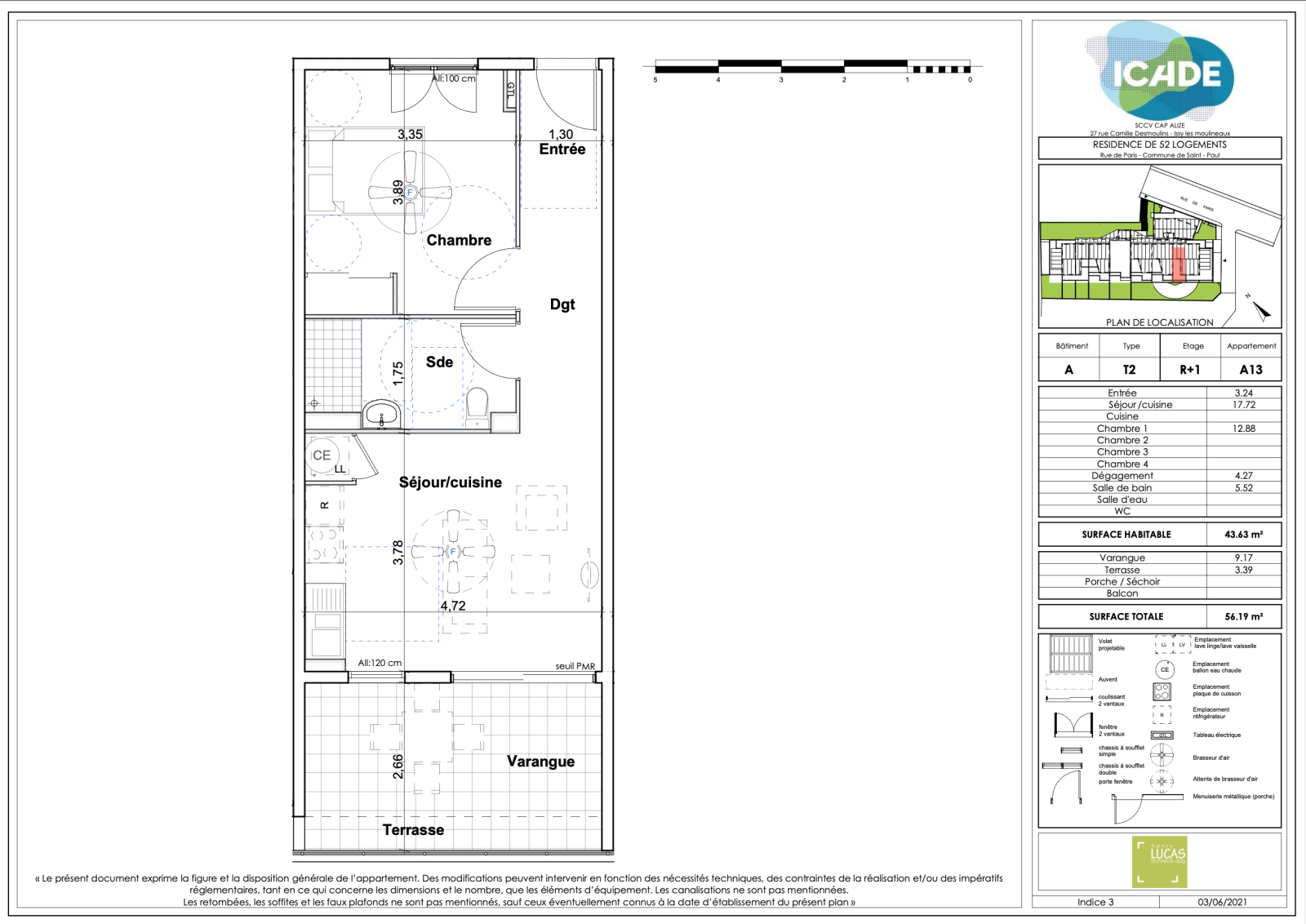
- Lot n°A13 : T2 situé à R+1 d'une surface habitable de 43.63m2, disposant d'une cuisine ouverte sur le séjour de 17.72m2, d'une salle de bain + WC de 5.52m2 et d'une chambre de 12.88m2. La cuisine offre également accès à une varangue + terrasse de 12.56m2.

La chambre de l'appartement sera équipée d'un brasseur d'air et une attente pour le séjour. Au prix de 204 000€ TTC, les honoraires sont à charge du vendeur.

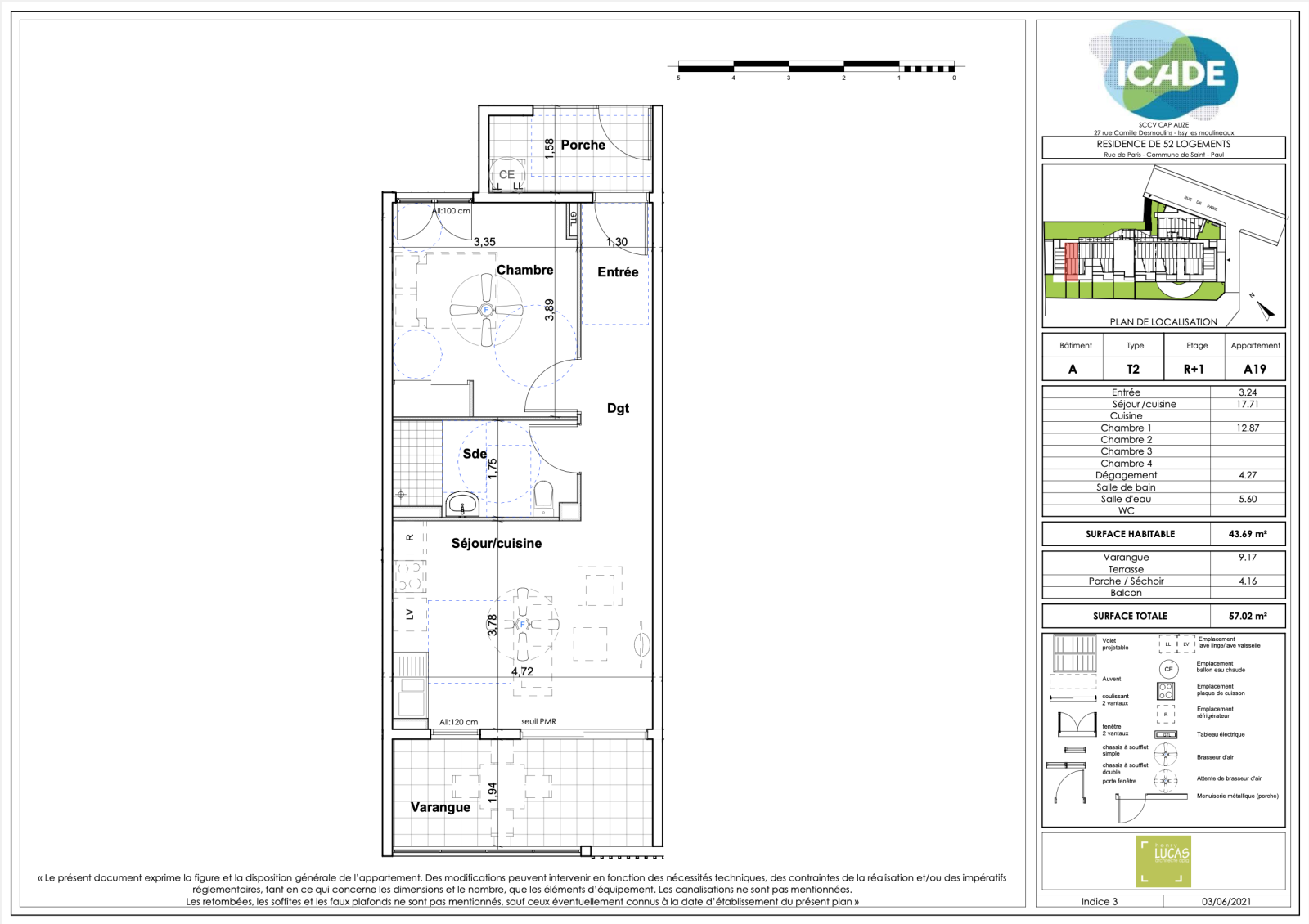
- Lot n°A19 : T2 situé à R+1 d'une surface habitable de 43.69m2, disposant d'une cuisine ouverte sur le séjour de 17.71m2, d'une salle d'eau+ WC de 5.60m2 et d'une chambre de 12.87m2, donnant sur un porshe de 4.16m2. La cuisine offre également accès à une varangue de 9.17m2.

La chambre de l'appartement sera équipée d'un brasseur d'air et une attente pour le séjour. Au prix de 204 000€ TTC, les honoraires sont à charge du vendeur.

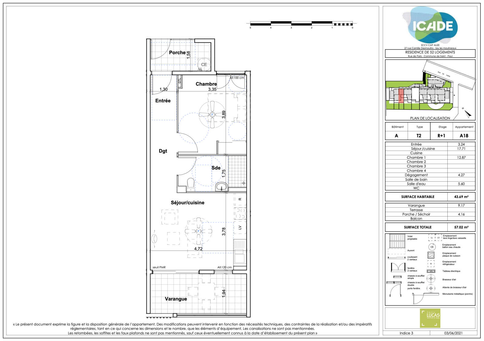
- Lot n°A18 : T2 situé à R+1 d'une surface habitable de 43.69m2, disposant d'une cuisine ouverte sur le séjour de 17.71m2, d'une salle d'eau+ WC de 5.60m2 et d'une chambre de 12.87m2, donnant sur un porshe de 4.16m2. La cuisine offre également accès à une varangue de 9.17m2.

La chambre de l'appartement sera équipée d'un brasseur d'air et une attente pour le séjour. Au prix de 204 000€ TTC, les honoraires sont à charge du vendeur.

Au deuxième étage 2 appartements au prix de 204 000€ : 

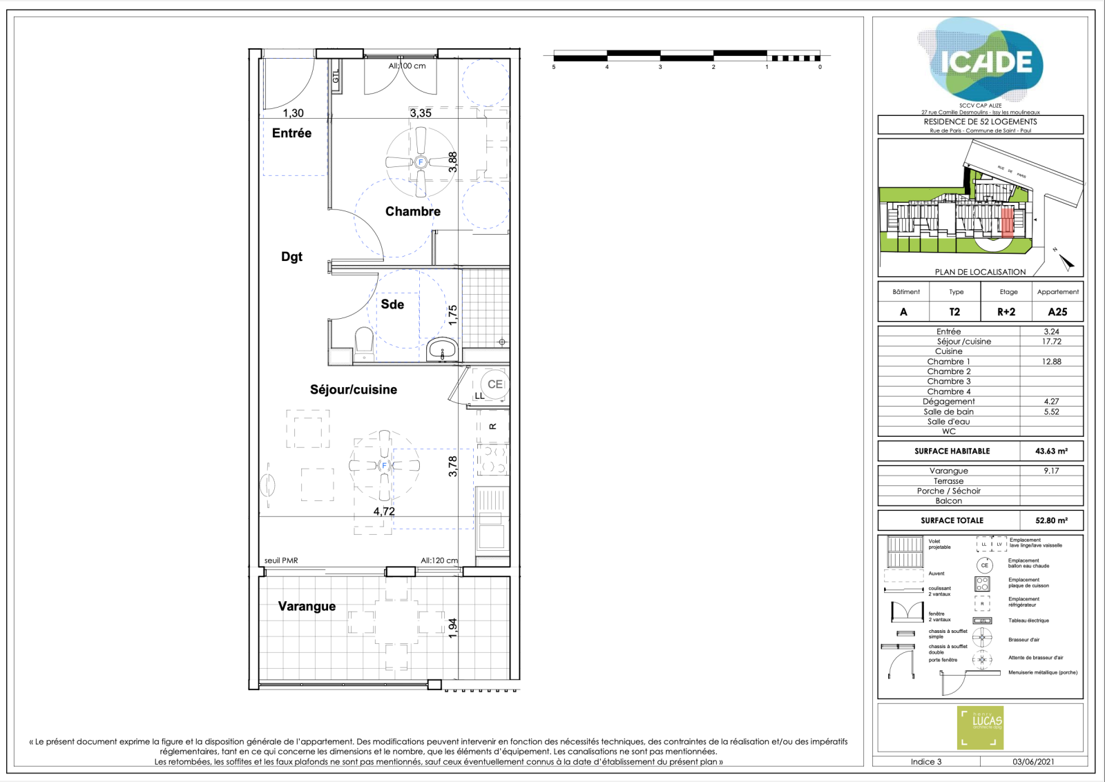
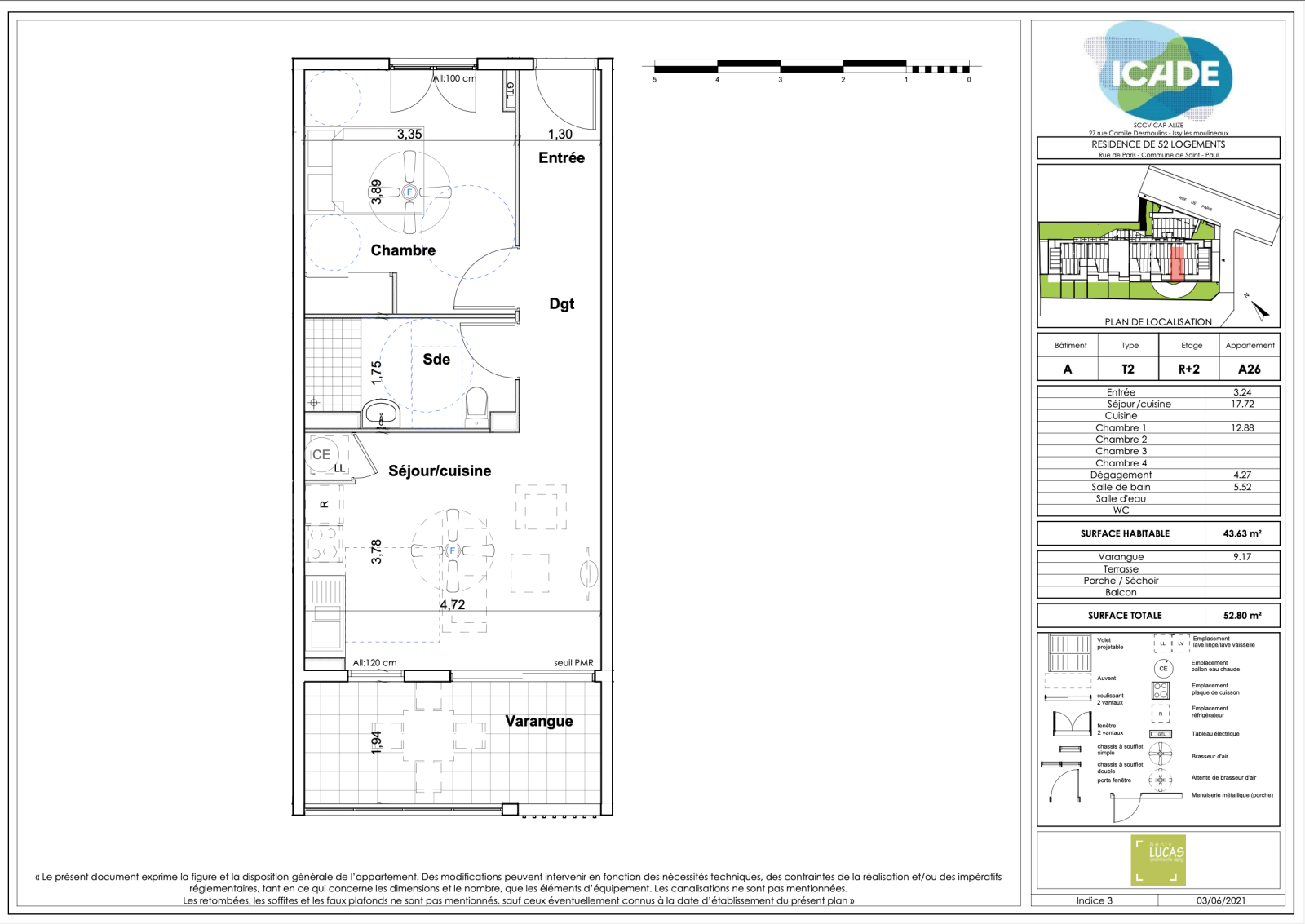
- Lot n°A25 : T2 situé à R+2 d'une surface habitable de 43.63m2, disposant d'une cuisine ouverte sur le séjour de 17.72m2, d'une salle de bain + WC de 5.52m2 et d'une chambre de 12.88m2. La cuisine offre également accès à une varangue de 9.17m2.

La chambre de l'appartement sera équipée d'un brasseur d'air et une attente pour le séjour. Au prix de 204 000€ TTC, les honoraires sont à charge du vendeur.

-Lot n°A25 : T2 situé à R+2 d'une surface habitable de 43.63m2, disposant d'une cuisine ouverte sur le séjour de 17.72m2, d'une salle de bain + WC de 5.52m2 et d'une chambre de 12.88m2. La cuisine offre également accès à une varangue de 9.17m2.

La chambre de l'appartement sera équipée d'un brasseur d'air et une attente pour le séjour. Au prix de 204 000€ TTC, les honoraires sont à charge du vendeur.

Au troisième étage 2 appartements à partir de 254 000€ à 255 000€.

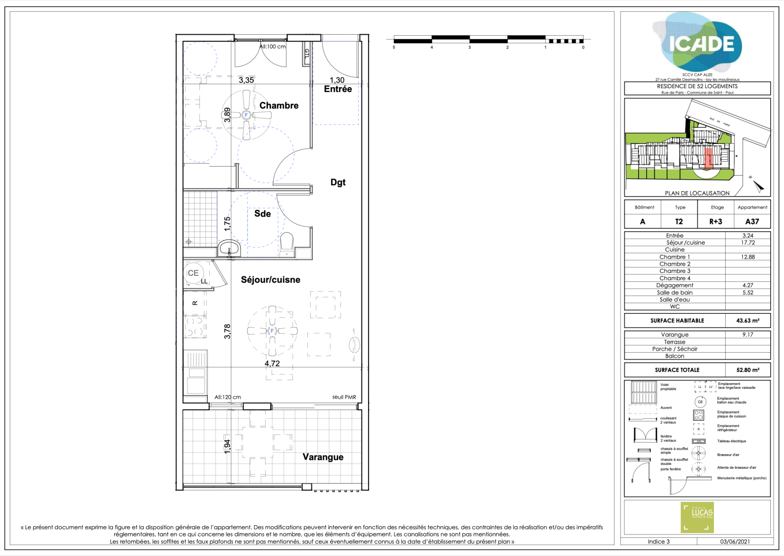
- Lot n°A37 : T2 situé à R+3 d'une surface habitable de 43.63m2, disposant d'une cuisine ouverte sur le séjour de 17.72m2, d'une salle de bain + WC de 5.52m2 et d'une chambre de 12.88m2. La cuisine offre également accès à une varangue de 9.17m2.

La chambre de l'appartement sera équipée d'un brasseur d'air et une attente pour le séjour. Au prix de 254 000€ TTC, les honoraires sont à charge du vendeur.

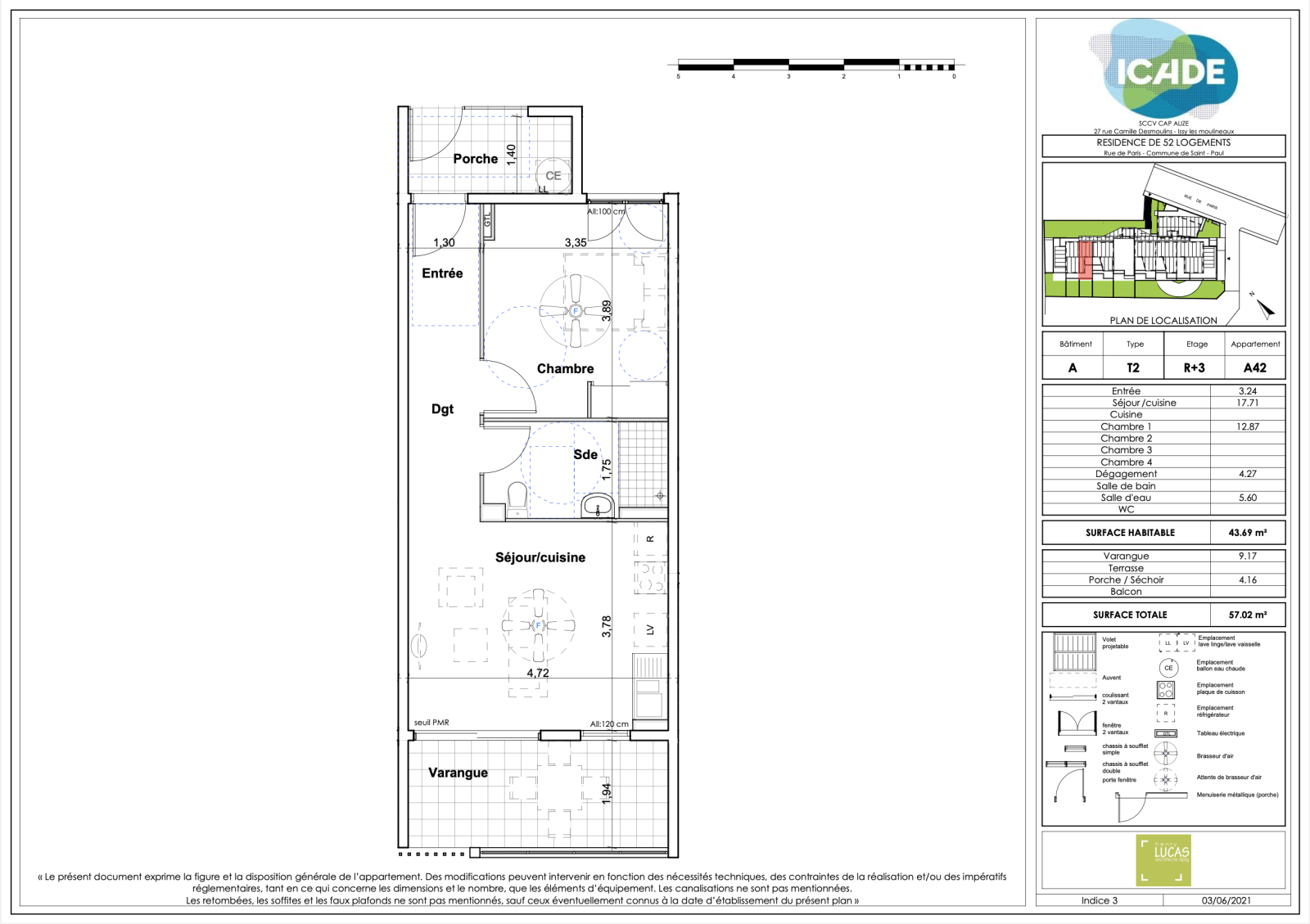
- Lot n°A42 : T2 situé à R+3 d'une surface habitable de 43.69m2, disposant d'une cuisine ouverte sur le séjour de 17.71m2, d'une salle d'eau + WC de 5.60m2 et d'une chambre de 12.88m2, donnant sur un porshe de 4.16m2. La cuisine offre également accès à une varangue de 9.17m2.

La chambre de l'appartement sera équipée d'un brasseur d'air et une attente pour le séjour. Au prix de 255 000€ TTC, les honoraires sont à charge du vendeur.

Au dernier étage 1 appartement avec vue mer au prix de 257 000€ : 

Pour des informations complémentaires contacter : Mme Banks Sandrine au 06 92 27 29 69 et Mme DUDORET Anna au +262 692 23 80 25, agent commercial immatriculé au RSAC de Saint-Pierre sous le numéro 2022AC00004

Prix du bien 204 000 €
Pièce(s) 2
Chambre(s) 1

Caractéristiques du bien

Caractéristiques Valeurs
Code postal 97460
Surface habitable (m²) 52,86 m²
Surface loi Carrez (m²) 52,86 m²
Nombre de chambre(s) 1
Nombre de pièces 2
Etage 1
Ascenseur OUI
Vue Mer
Nb de salle de bains 1
Nb de salle d'eau 1
Cuisine Américaine
Murs mitoyens 2
Nombre de parking 1
Exposition Sud-Ouest
Année de construction 2025

Infos financières

Caractéristiques Valeurs
Prix de vente honoraires TTC inclus 204 000 €

Bilans énergétiques

DPE GES
Ce bien vous intéresse ?
Fieldset par défaut
Fieldset par défaut
Validation

* Champs obligatoires

Contacter l'agence
Validation
Les informations recueillies sur ce formulaire sont enregistrées dans un fichier informatisé par La Boite Immo agissant comme Sous-traitant du traitement pour la gestion de la clientèle/prospects de l'Agence / du Réseau qui reste Responsable du Traitement de vos Données personnelles. La base légale du traitement repose sur l'intérêt légitime de l'Agence / du Réseau. Elles sont conservées jusqu'à demande de suppression et sont destinées à l'Agence / au Réseau. Conformément à la loi « informatique et libertés », vous disposez des droits d’accès, de rectification, d’effacement, d’opposition, de limitation et de portabilité de vos données. Vous pouvez retirer votre consentement à tout moment en contactant directement l’Agence / Le Réseau. Consultez le site https://cnil.fr/fr pour plus d’informations sur vos droits. Si vous estimez, après avoir contacté l'Agence / le Réseau, que vos droits « Informatique et Libertés » ne sont pas respectés, vous pouvez adresser une réclamation à la CNIL. Nous vous informons de l’existence de la liste d'opposition au démarchage téléphonique « Bloctel », sur laquelle vous pouvez vous inscrire ici : https://www.bloctel.gouv.fr Dans le cadre de la protection des Données personnelles, nous vous invitons à ne pas inscrire de Données sensibles dans le champ de saisie libre.
Ce site est protégé par reCAPTCHA, les Politiques de Confidentialité et les Conditions d'Utilisation de Google s'appliquent.