Nos avis clients
Nos avis clients
0

Déficit foncier | Loi Denormandie | Frais de notaire réduits

Béziers (34500)
Réf : L.P 02 371

Déficit foncier | Loi Denormandie | Frais de notaire réduits


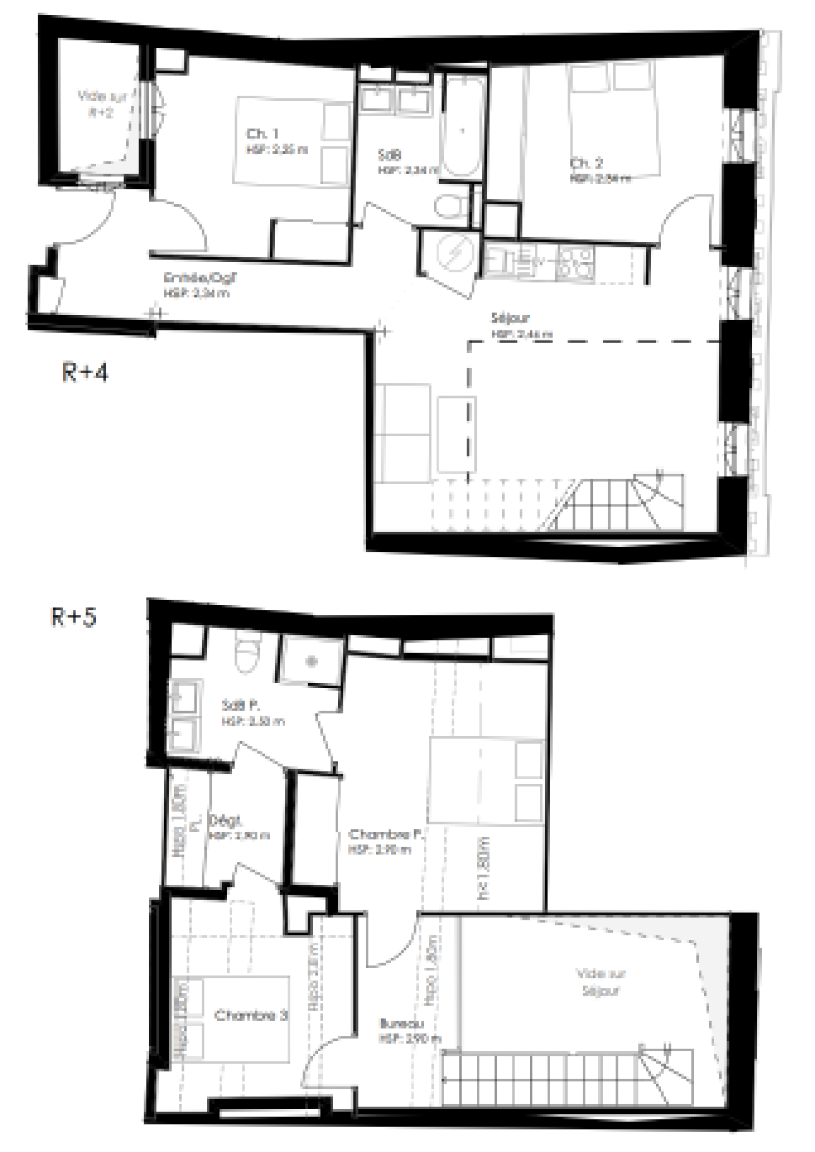
Un bien d'exception au cœur du centre-ville de Béziers, situé sur une charmante place accueillante et doté de toutes les commodités nécessaires.

Cet appartement neuf de haut standing se trouve au dernier étage d'un immeuble des 13?/14? siècles classé en site patrimonial.

Ce grand duplex, comprenant 4 chambres, est idéal pour servir d'habitation ou pour un investissement en déficit foncier grâce à ses spécificités et à la possibilité de colocation.


Voici une notice explicative. Nous vous invitons à nous contacter pour un détail approfondi :

  • Prix d’acquisition : 53 600 €
  • Frais de notaire : 5 550 €
  • Travaux déductibles : 225 050 €
  • Travaux non déductibles : 113 350 €
  • Total à financer : 397 550 € (frais de notaire inclus)
  • Gain fiscal DF (TMI 41% + PS 17,2%) : 130 979 €
  • Prix de revient après défiscalisation : 266 571 €
  • Loyer colocation : 1 600 €/mois

Soit un prix de revient avant défiscalisation de 4 420 €/m².
Soit un prix de revient après déficit foncier de 2 960 €/m².
Soit une rentabilité locative nette après déficit foncier de 7,2%/an.
Passage en meublé possible après 3 ans (mobilier fourni).


Contact : Pastant Lucas Mail : pastant-lucas@abithea.fr Tél : 06 25 85 55 08

Immatriculation RSAC : 891013849 R.S.A.C Béziers

Les informations sur les risques auxquels ce bien est exposé sont disponibles sur le site Géorisques http://www.georisques.gouv.fr

découvrir le bien
Prix du bien 392 000 €
Pièce(s) 5
Chambre(s) 4

Caractéristiques du bien

Caractéristiques Valeurs
Code postal 34500
Surface habitable (m²) 90 m²
Surface loi Carrez (m²) 90 m²
Nombre de chambre(s) 4
Nombre de pièces 5
Nb de salle d'eau 2
Cuisine Américaine
Type de cuisine SEMI-EQUIPEE

Infos financières

Caractéristiques Valeurs
Prix de vente honoraires TTC inclus 392 000 €

Bilans énergétiques

DPE GES
Ce bien vous intéresse ?
Fieldset par défaut
Fieldset par défaut
Validation

* Champs obligatoires

Contacter l'agence
Validation
Les informations recueillies sur ce formulaire sont enregistrées dans un fichier informatisé par La Boite Immo agissant comme Sous-traitant du traitement pour la gestion de la clientèle/prospects de l'Agence / du Réseau qui reste Responsable du Traitement de vos Données personnelles.
La base légale du traitement repose sur l’intérêt légitime de l'Agence / du Réseau.
Elles sont conservées jusqu'à demande de suppression et sont destinées à l'Agence / au Réseau.
Conformément à la loi « informatique et libertés », vous pouvez exercer votre droit d'accès aux données vous concernant et les faire rectifier en contactant l'Agence / le Réseau.
Si vous estimez, après avoir contacté l'Agence / le Réseau, que vos droits « Informatique et Libertés » ne sont pas respectés, vous pouvez adresser une réclamation à la CNIL.
Nous vous informons de l’existence de la liste d'opposition au démarchage téléphonique « Bloctel », sur laquelle vous pouvez vous inscrire ici : https://www.bloctel.gouv.fr 
Dans le cadre de la protection des Données personnelles, nous vous invitons à ne pas inscrire de Données sensibles dans le champ de saisie libre
Ce site est protégé par reCAPTCHA, les Politiques de Confidentialité et les Conditions d'Utilisation de Google s'appliquent.