Nos avis clients
Nos avis clients
0

Appartements de type T3 au 1er étage, 2e étage et 3e étage en VEFA.

Saint-Paul (97460)
Réf : 7435

Plusieurs appartements avec vue sur mer de type T3 sont disponibles à la vente dans la Résidence Cap Alizé à Saint-Paul, cette résidence possèdera 56 logements en copropriété. 

Sur quatres étages. Desservi d'un ascenseur passant par tout les étages.

Elle possèdera un parking collectif en sous-sol, chaque appartement possèdera un numéro de place attribué, elle sera également fermée par un portail. 

La résidence sera également équipée de panneaux solaires.

Vous serez proche de la gare routière, école, supermarché, centre-ville,200m² du marché de Saint-Paul et piscine du front de mer.

10 apprtements de type T3 sont disponibles à partir de 313 000€ à 342 000€.

Au premier étage 3 apprtements à partir de 318 000€ à 342 000€ : 

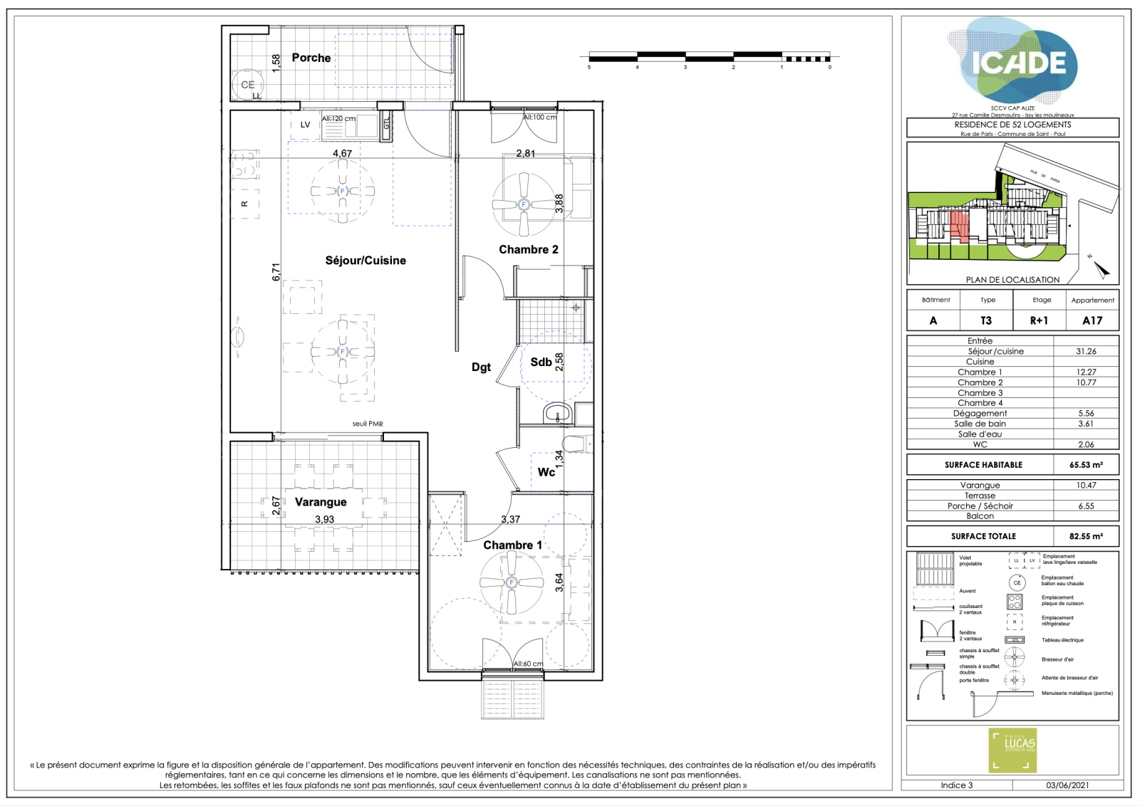
- Lot n°A17 : T3 situé à R+1 d'une surface habitable de 65.53m2, disposant d'une cuisne ouverte sur le séjour de 31.26m2, d'une salle de bain de 3.61m2, d'un WC de 2.06m2, d'une première chambre de 12.27m2 et d'une seconde chambre de 10.77m2. Pour l'extérieur vous pourrez y retrouver une varangue de 10.47m2 et un porshe de 6.55m2.

Les 2 chambres seront équipées de brasseur d'air et 2 attentes pour le séjour. Au prix de 318 000€ TTC, les honoraires sont à charge du vendeur.

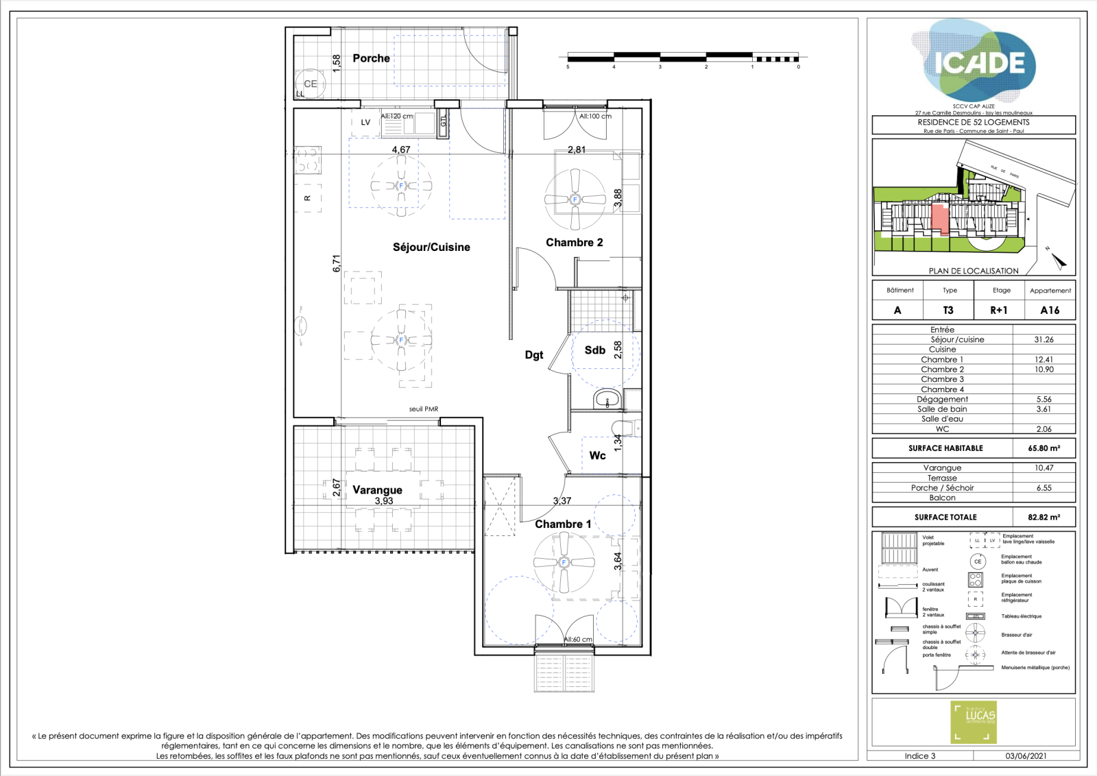
- Lot n°A16 : T3 situé à R+1 d'une surface habitable de 65.80m2, dispoasant d'une cuisine ouverte sur le séjour de 31.26m2, d'une salle de bain de 3.61m2, d'un WC de 2.06m2, d'une première chambre de 12.41m2 et d'une seconde de 10.90m2. Pour l'extérieur vous pourrez y retrouver une varangue de 10.47m2 et un porshe de 6.55m2.

Les 2 chambres seront équipées de brasseur d'air et 2 attentes pour le séjour. Au prix de 318 000€ TTC, les honoraires sont à charge du vendeur.

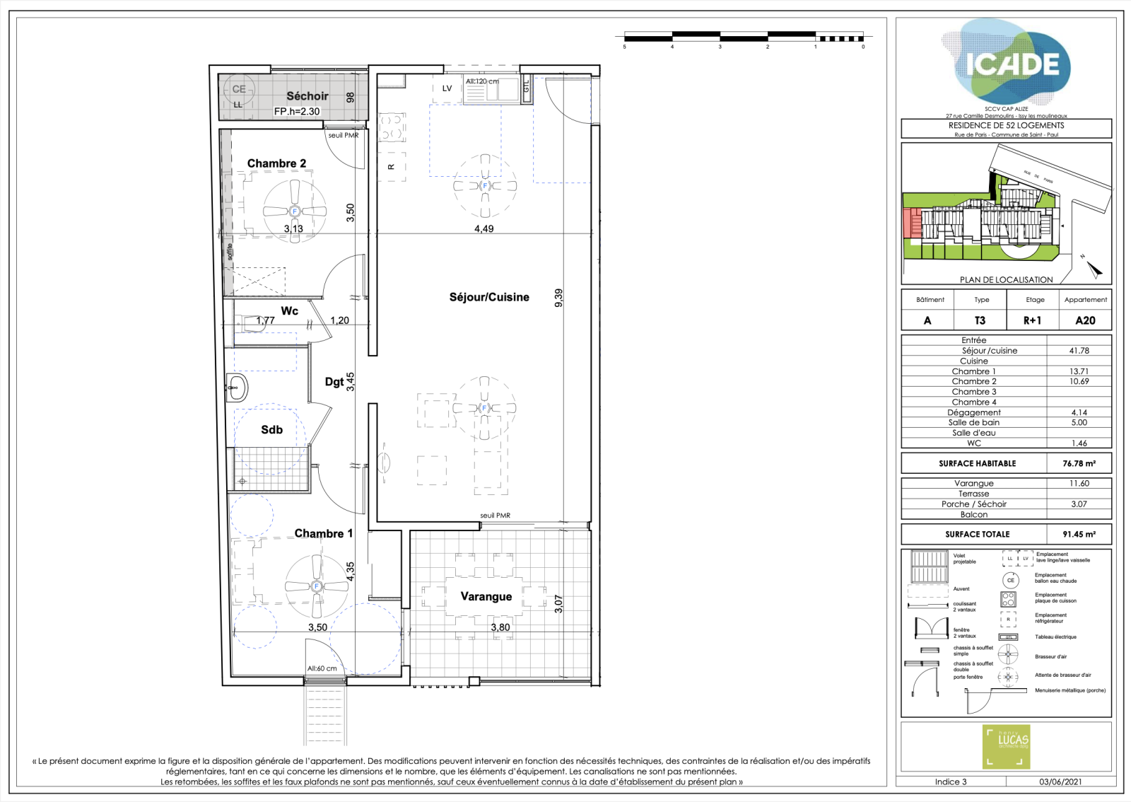
- Lot n°A20 : T3 situé à R+1 d'une surface habitable de 76.18m2, disposant d'une cuise ouverte sur le séjour de 41.78m2, d'une salle de bain de 5.00m2, d'un WC de 1.46m2, d'une première chambre de 13.71m2 et d'une seconde de 10.69m2. Pour l'extérieur vous pourrez y retrouver une varangue de 11.60m2 et un porshe de 3.07m2.

Les 2 chambres seront équipées de brasseur d'air et 2 attentes pour le séjour. Au prix de 342 000€ TTC, les honoraires sont à charge du vendeur.

Au deuxième étage 5 apprtements à partir de 313 000€ à 322 000€ : 

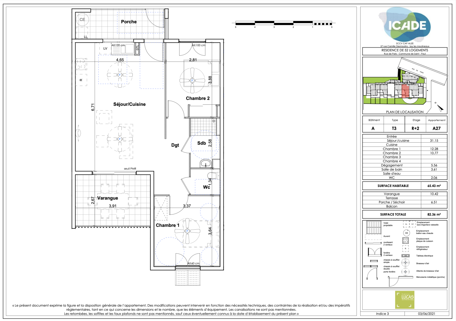
- Lot n°A27 : T3 situé à R+2 d'une surface habitable de 65.43m2, disposant d'une ouverte sur le séjour de 31.15m2, d'une salle de bain de 3.61m2, d'un WC de 2.06m2, d'une première chambre de 12.28m2 et d'une seconde chambre de 10.77m2. Pour l'extérieur vous pourrez y retrouver une varangue de 10.42m2 et un porshe de 6.51m2.

Les 2 chambres seront équipées de brasseur d'air et 2 attentes pour le séjour. Au prix de 321 000€ TTC, les honoraires sont à charge du vendeur.

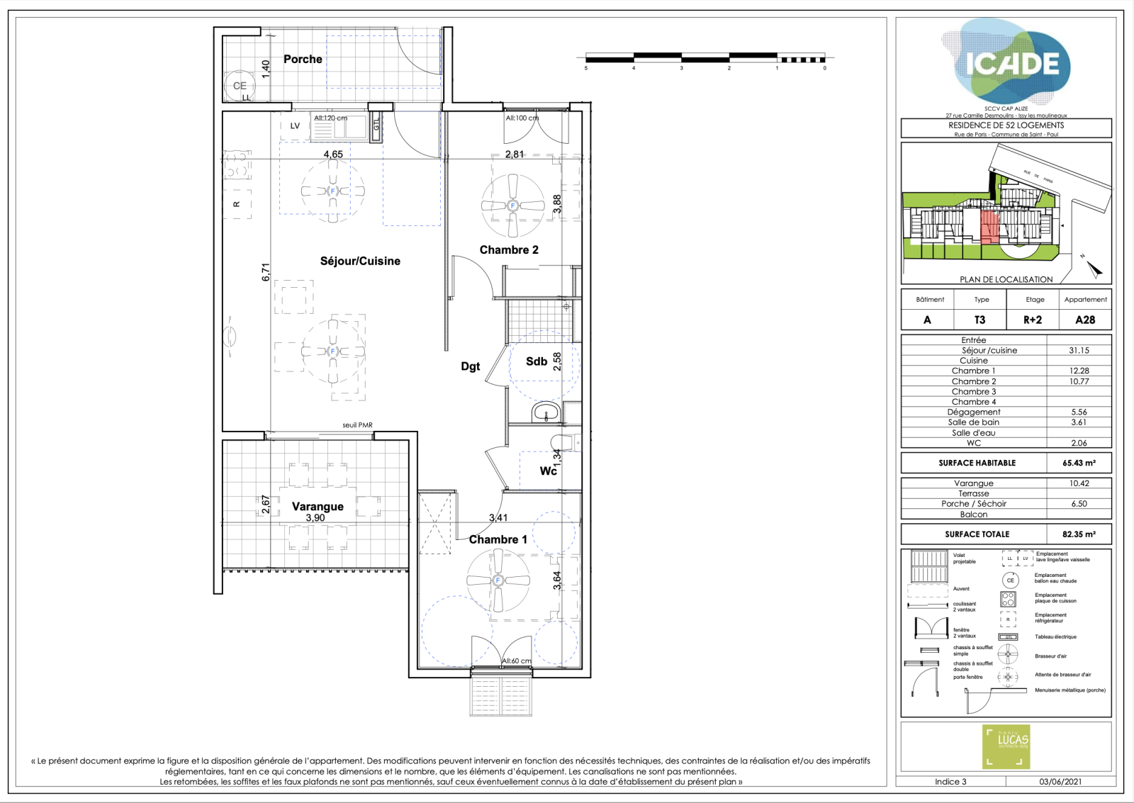
- Lot n°A28 : T3 situé à R+2 d'une surface habitable de 65.43m2, disposant d'une ouverte sur le séjour de 31.15m2, d'une salle de bain de 3.61m2, d'un WC de 2.06m2, d'une première chambre de 12.28m2 et d'une seconde chambre de 10.77m2. Pour l'extérieur vous pourrez y retrouver une varangue de 10.42m2 et un porshe de 6.50m2.

Les 2 chambres seront équipées de brasseur d'air et 2 attentes pour le séjour. Au prix de 321 000€ TTC, les honoraires sont à charge du vendeur.

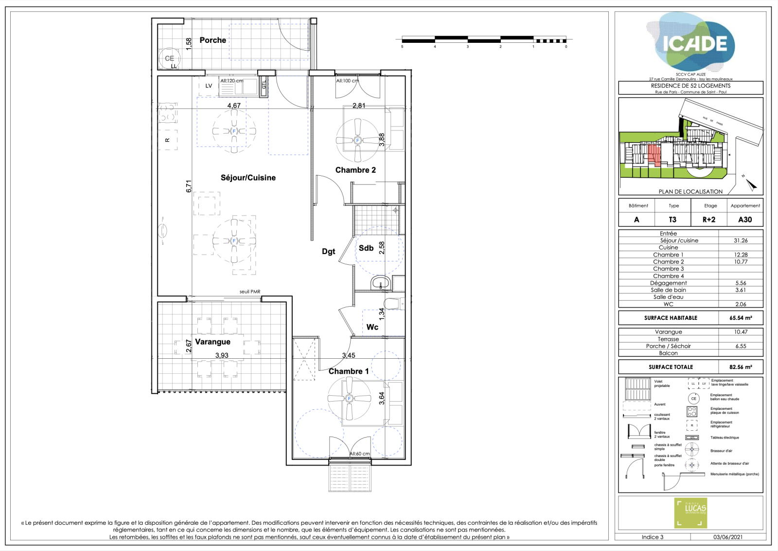
- Lot n°A30 : T3 situé à R+2 d'une surface habitable de 65.54m2, disposant d'une cuisine ouverte sur le séjour de 31.26m2, d'une salle de bain de 3.61m2, d'un WC de 2.06m2, d'une première chambre de 12.28m2 et d'une seconde chambre de 10.77m2. Pour l'extérieur vous pourrez y retrouver une varangue de 10.47m2 et un porshe de 6.55m2.

Les 2 chambres seront équipées de brasseur d'air et 2 attentes pour le séjour. Au prix de 322 000€ TTC, les honoraires sont à charge du vendeur.

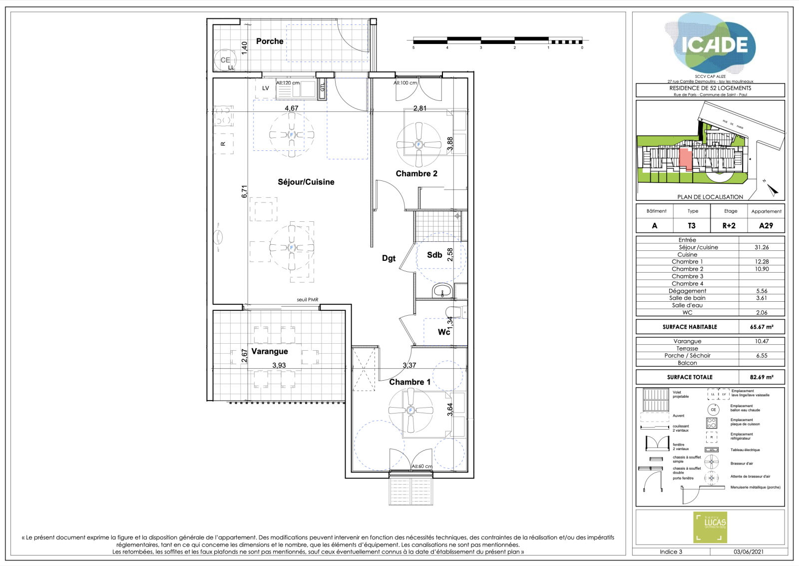
- Lot n°A29 : T3 situé à R+2 d'une surface habitable de 65.67m2, disposant d'une cuisine ouverte sur le séjour de 31.26m2, d'une salle de bain de 3.61m2, d'un WC de 2.06m2, d'une première chambre de 12.28m2 et d'une seconde chambre de 10.90m2. Pour l'extérieur vous pourrez y retrouver une varangue de 10.47m2 et un porshe de 6.55m2.

Les 2 chambres seront équipées de brasseur d'air et 2 attentes pour le séjour. Au prix de 322 000€ TTC, les honoraires sont à charge du vendeur.

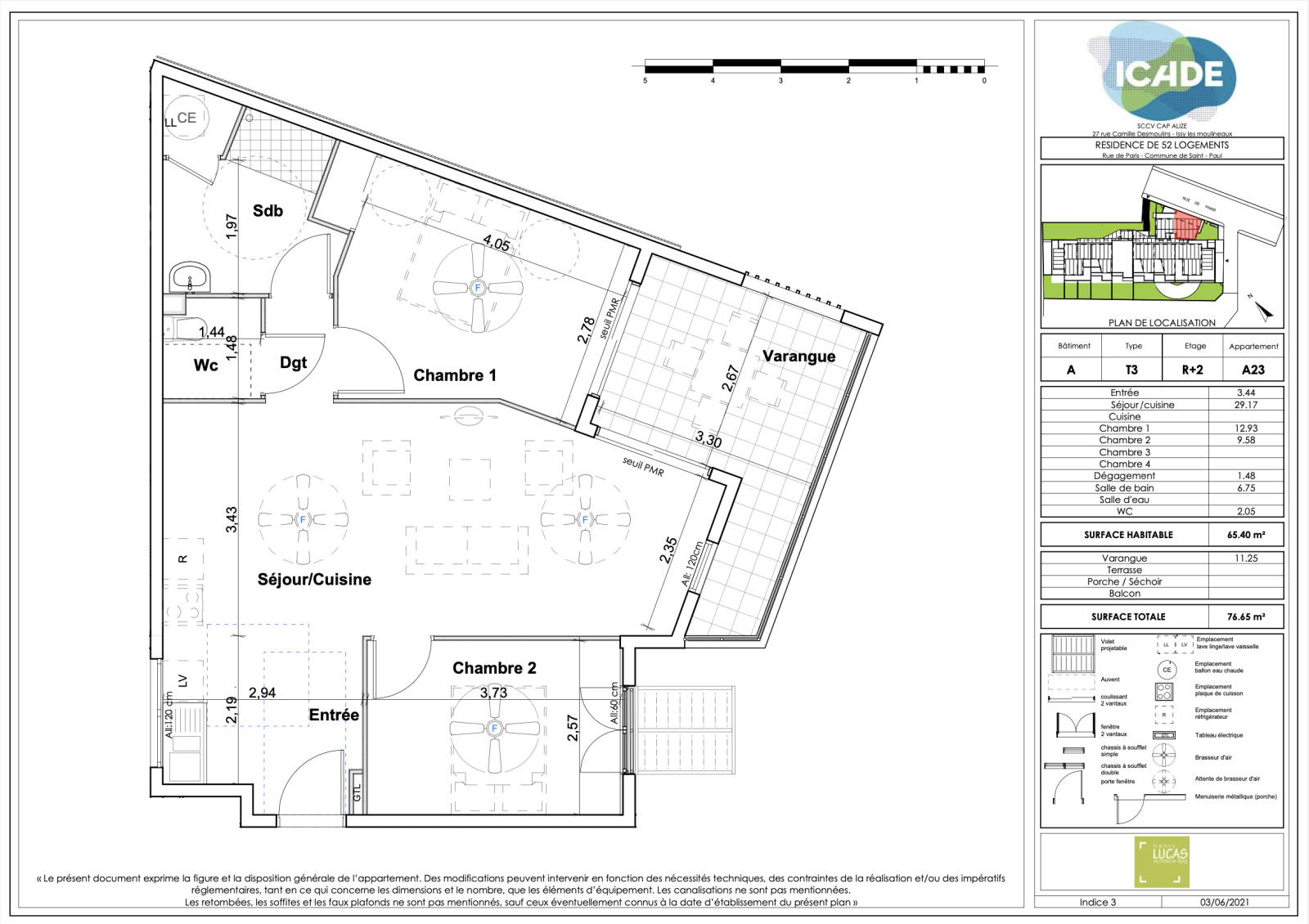
- Lot n°A23 : T3 situé à R+2 d'une surface habitable de 65.40m2, disposant d'une cuisine ouverte sur le séjour de 29.17m2, d'une salle de bain de 6.75m2, d'un WC de 2.05m2, d'une première chambre de 12.93m2 et d'une seconde chambre de 9.58m2. Pour l'extérieur vous pourrez y retrouver une varangue de 11.25m2.

Les 2 chambres seront équipées de brasseur d'air et 2 attentes pour le séjour. Au prix de 313 000€ TTC, les honoraires sont à charge du vendeur.

Au troisième étage 2 appartements au prix de 326 000€ : 

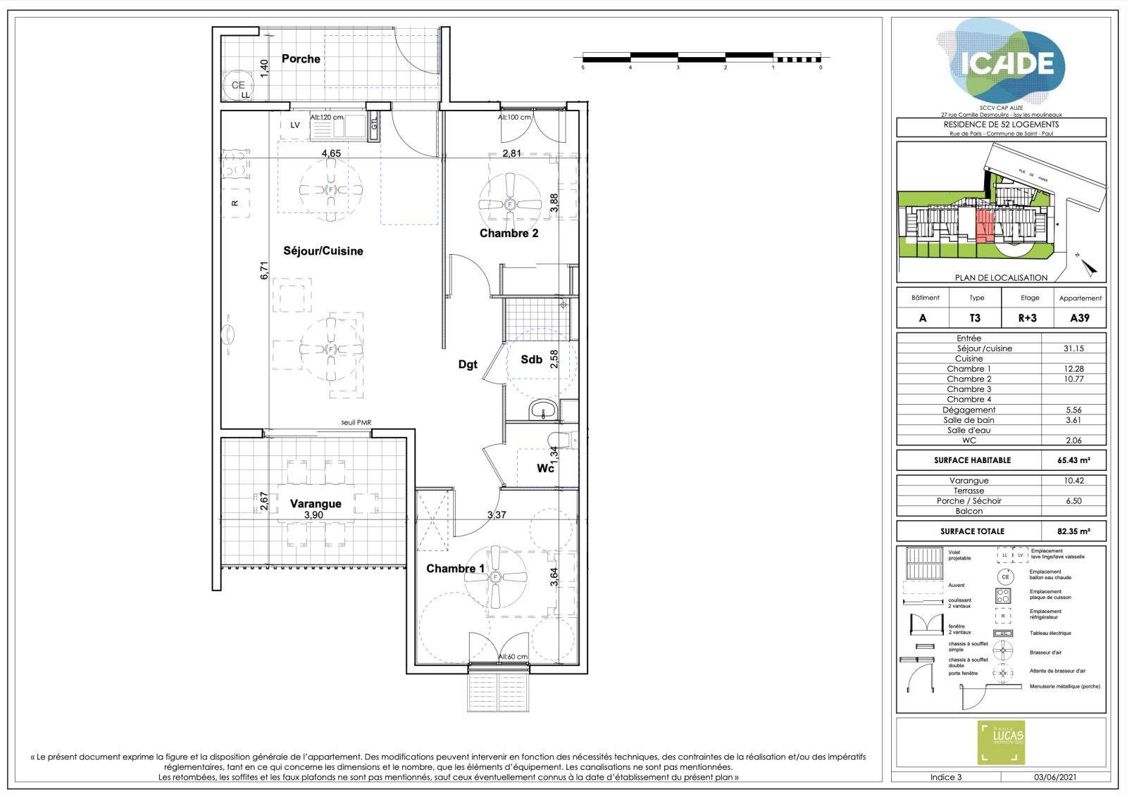
- Lot n°A39 : T3 situé à R+3 d'une surface habitable de 65.43m2, disposant d'une cuisine ouverte sur le séjour de 31.15m2, d'une salle de bain de 3.61m2, d'un WC de 2.06m2, d'une première chambre de 12.28m2 et d'une seconde chambre de 10.77m2. Pour l'extérieur vous pourrez y retrouver une varangue de 10.42m2 et un porshe de 6.50m2.

Les 2 chambres seront équipées de brasseur d'air et 2 attentes pour le séjour. Au prix de 326 000€ TTC, les honoraires sont à charge du vendeur.

- Lot n°A40 : T3 situé à R+3 d'une surface habitable de 65.67m2, disposant d'une cuisine ouverte sur le séjour de 31.26m2, d'une salle de bain de 3.61m2, d'un WC de 2.06m2, d'une première chambre de 12.28m2 et d'une seconde chambre de 10.90m2. Pour l'extérieur vous pourrez y retrouver une varangue de 10.47m2 et un porshe de 6.55m2.

Les 2 chambres seront équipées de brasseur d'air et 2 attentes pour le séjour. Au prix de 326 000€ TTC, les honoraires sont à charge du vendeur.

Pour des informations complémentaires contacter : Mme Banks Sandrine au 06 92 27 29 69 et Mme DUDORET Anna au +262 692 23 80 25, agent commercial immatriculé au RSAC de Saint-Pierre sous le numéro 2022AC00004.

Prix du bien 313 000 €
Pièce(s) 3
Chambre(s) 2

Caractéristiques du bien

Caractéristiques Valeurs
Code postal 97460
Surface habitable (m²) 65,40 m²
Surface loi Carrez (m²) 65,40 m²
Nombre de chambre(s) 2
Nombre de pièces 3
Etage 2
Nombre de niveaux 4
Ascenseur OUI
Vue mer
Nb de salle de bains 1
Cuisine Américaine
Murs mitoyens 2
Exposition Sud-Ouest

Infos financières

Caractéristiques Valeurs
Prix de vente honoraires TTC inclus 313 000 €

Bilans énergétiques

DPE GES
Ce bien vous intéresse ?
Fieldset par défaut
Fieldset par défaut
Validation

* Champs obligatoires

Contacter l'agence
Validation
Les informations recueillies sur ce formulaire sont enregistrées dans un fichier informatisé par La Boite Immo agissant comme Sous-traitant du traitement pour la gestion de la clientèle/prospects de l'Agence / du Réseau qui reste Responsable du Traitement de vos Données personnelles. La base légale du traitement repose sur l'intérêt légitime de l'Agence / du Réseau. Elles sont conservées jusqu'à demande de suppression et sont destinées à l'Agence / au Réseau. Conformément à la loi « informatique et libertés », vous disposez des droits d’accès, de rectification, d’effacement, d’opposition, de limitation et de portabilité de vos données. Vous pouvez retirer votre consentement à tout moment en contactant directement l’Agence / Le Réseau. Consultez le site https://cnil.fr/fr pour plus d’informations sur vos droits. Si vous estimez, après avoir contacté l'Agence / le Réseau, que vos droits « Informatique et Libertés » ne sont pas respectés, vous pouvez adresser une réclamation à la CNIL. Nous vous informons de l’existence de la liste d'opposition au démarchage téléphonique « Bloctel », sur laquelle vous pouvez vous inscrire ici : https://www.bloctel.gouv.fr Dans le cadre de la protection des Données personnelles, nous vous invitons à ne pas inscrire de Données sensibles dans le champ de saisie libre.
Ce site est protégé par reCAPTCHA, les Politiques de Confidentialité et les Conditions d'Utilisation de Google s'appliquent.